150 000 000 ₽

2 793 817 ₽ /сотка

53,7 сот
Площадь

Поделиться

Добавить в избранное

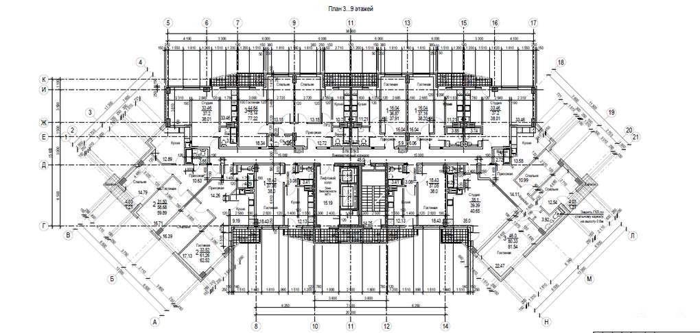
Земельные участки, общей площадью 5369 кв.м., огорожен забором, под многоэтажную застройку, есть рабочий проект - жилой многоквартирный дом 19 этажей, разрешение на строительство, продлено до 27.11.2027 г., выданные технические условия - водоснабжение, элетроснабжение, теплоснабжение. Общая площадь здания 12 805 кв.м , из них жилая площадь 8.610, 15 кв.м., нежилая 876 кв.м. Количество квартир- 173 шт, 1-комн. - 110 шт., 2-х комн.- 32 шт., 3-х комн.- 31 шт. Все остальные подробности по телефону.

Дата обновления: 27 марта 2026